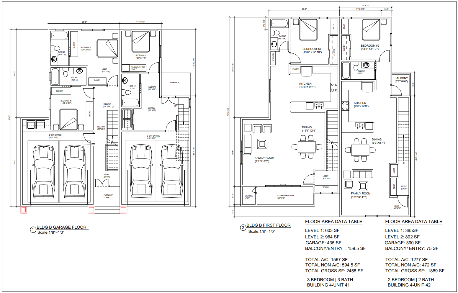
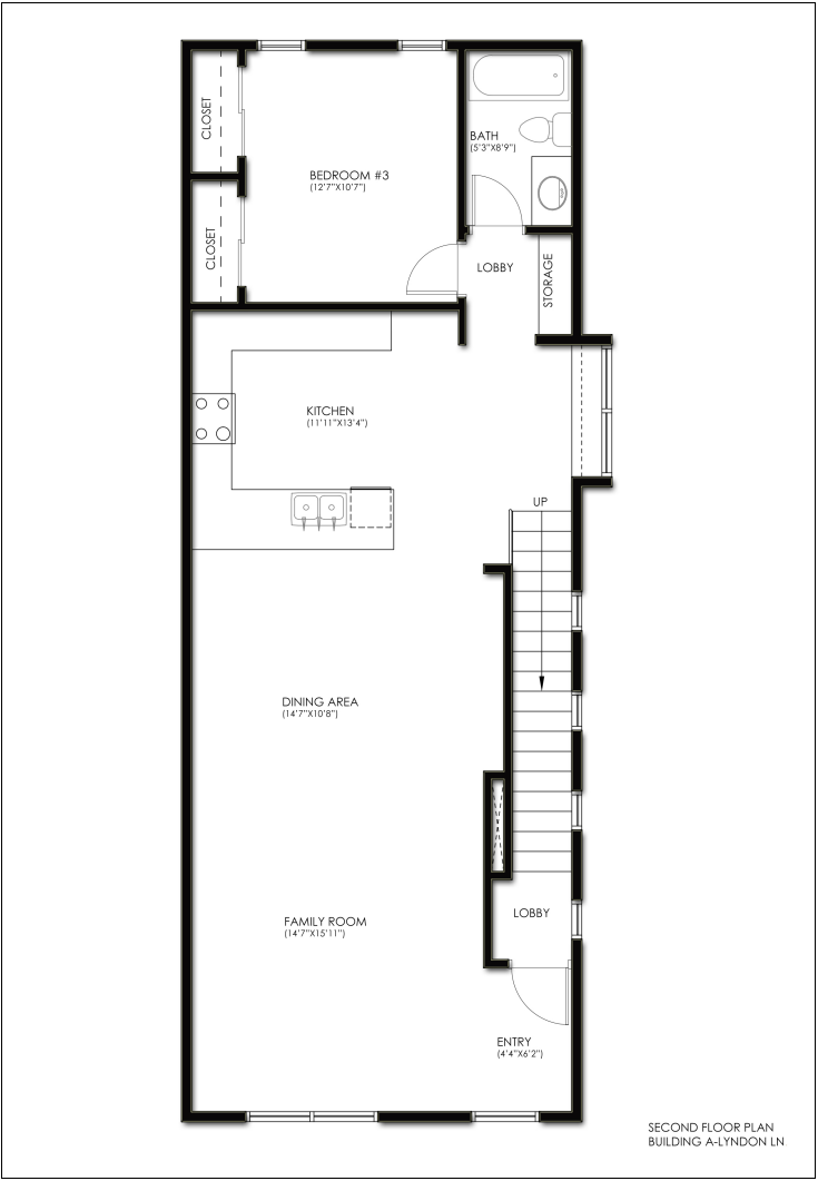
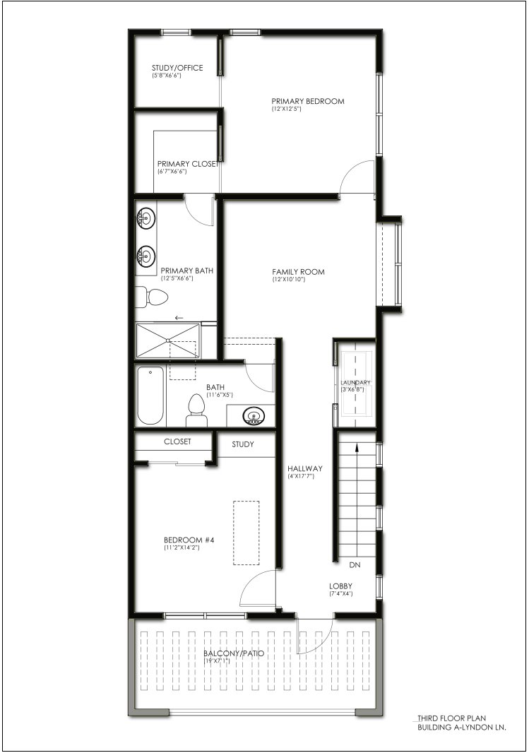
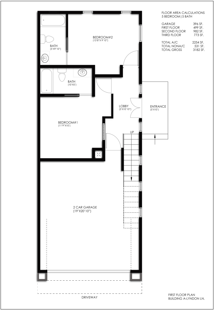
Ramendu at Lyndon Ln